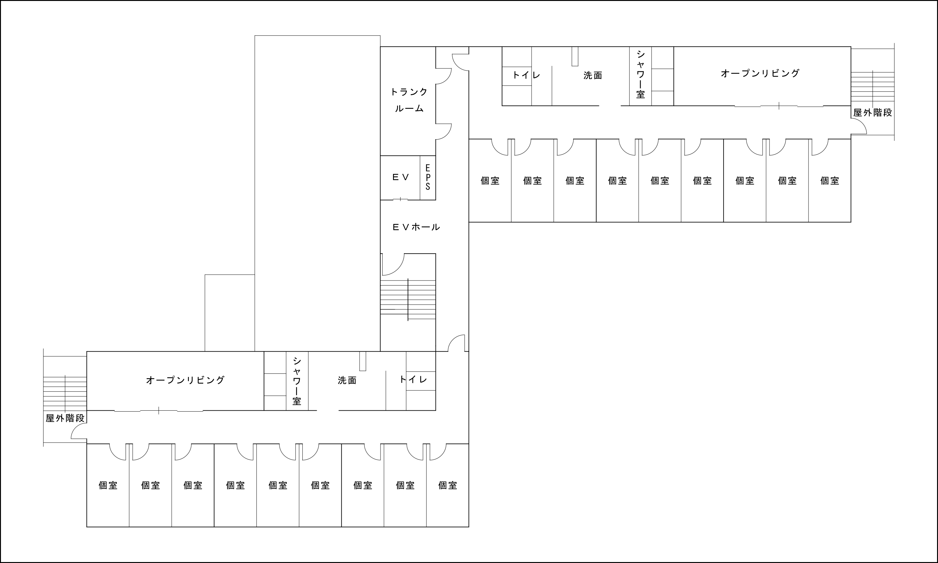
施設概要
本学学生寮(輝光寮)の施設概要は以下のとおりです。
入寮資格
本学の学部生または大学院生で、標準修業年限を越えていないこと。
禁酒・禁煙の規則を遵守できる者。
在寮期間
標準修業年限が経過するまでの間。(入学と同時に入寮した場合:4年間)
寄宿料等
| 1人部屋 | 4人部屋 | |
|---|---|---|
| 寄宿料(月額) | 20,000円 | 15,000円 |
| 共益費(月額) | 500円(※2023年度実績額) | 500円(※2023年度実績額) |
| 合計 | 20,500円 | 15,500円 |
| 入寮時預り金 | 30,000円 ※退寮後、居室清掃費等を精算したうえ返金します。 |
|---|
光熱水料
「各居室での個人使用分」に「共有スペース使用分(人数で按分)」を加えたものが負担額となります。
| 光熱水料目安 | |
|---|---|
| 夏季 | (月額)5,000円程度 |
| 冬季 | (月額)10,000円程度 |
※使用量に応じて料金に個人差があります。
通信費
各自でプロバイダ契約を結んでください。(契約可能プロバイダ:NTT、インボイス)
募集状況(令和8年4月入寮者募集中)
以下学生寮募集要項より空室状況をご確認いただけます。
ただし、新入生の受入準備があるため、3月入寮は受け付けておりません。
入寮に係るQ&A
入寮検討のため事前に見学できますか。
空き部屋がある場合に限り事前に見学することができます。
見学は管理人立会いのもと、午前8時半~12時、午後1時~5時の範囲内で対応可能です。
見学を希望される方は、見学希望日の1週間前までに、ご都合の良い日程を第三希望まで問合せフォームに入力し送信してください。
※見学は在学生および入学試験合格者とその保護者に限り、受験生や一般の方からの見学依頼はセキュリティ等の観点からお断りしております。
見学は管理人立会いのもと、午前8時半~12時、午後1時~5時の範囲内で対応可能です。
見学を希望される方は、見学希望日の1週間前までに、ご都合の良い日程を第三希望まで問合せフォームに入力し送信してください。
※見学は在学生および入学試験合格者とその保護者に限り、受験生や一般の方からの見学依頼はセキュリティ等の観点からお断りしております。
入寮・退寮の引越し作業に伴う本人以外の入館、車等の乗り入れはできますか。
原則、学生寮は寮生以外(保護者・友人・引っ越し業者等)の立ち入りを禁止しているため、引っ越し作業に伴う本人以外の入館をお断りしております。
そのため、入寮時の荷物運び入れは玄関ホールまでとなり、そこからは寮生ご自身で搬入いただくこととなります。台車の貸出は可能です。
居室部分は5畳程度と広くはなく、備え付け備品として机・椅子・パイプベッド等を用意しているため、大型物品を置ける程のスペースはございませんが、 重い荷物等の運搬を伴う場合は、24時間在中している管理人と協力し搬入・搬出いただきます。
また、引っ越しを目的とする構内への車等の乗り入れ(一時的な乗り入れ)を希望される方は、引っ越しの当日一度正門入ってすぐの左手にございます守衛室に立ち寄り、臨時の入構許可を発行いただいた後、学生寮までお越しください。なお、寮生が所有する車を駐車するスペースはございませんのでご留意ください。
そのため、入寮時の荷物運び入れは玄関ホールまでとなり、そこからは寮生ご自身で搬入いただくこととなります。台車の貸出は可能です。
居室部分は5畳程度と広くはなく、備え付け備品として机・椅子・パイプベッド等を用意しているため、大型物品を置ける程のスペースはございませんが、 重い荷物等の運搬を伴う場合は、24時間在中している管理人と協力し搬入・搬出いただきます。
また、引っ越しを目的とする構内への車等の乗り入れ(一時的な乗り入れ)を希望される方は、引っ越しの当日一度正門入ってすぐの左手にございます守衛室に立ち寄り、臨時の入構許可を発行いただいた後、学生寮までお越しください。なお、寮生が所有する車を駐車するスペースはございませんのでご留意ください。
入寮手続
上記の学生寮募集要項をご確認いただき、空室がある場合は、入寮希望者の受付を行います。
入寮を希望する者は、学生寮募集要項に記載の提出期限までに以下書類を準備し、学生センターの学生支援係窓口まで提出してください。
※入学試験に合格された受験生については、入学手続案内に記載の方法により申請を行ってください。
提出書類
-
・入寮願(PDF)
・入寮希望申請書(PDF)
・入寮誓約書(PDF)
・保証書(PDF)
・入寮希望申請書内に赤字で記載のある書類
退寮手続
退寮を希望する者は、退寮希望月の1か月前までに、「在学生・卒業生等 問合せフォーム」より「お問い合わせ内容:学生寮」を選択し、メッセージに退寮希望日を入力(例 〇月〇日退寮希望)し送信してください。問合せの返信時に、退寮願の様式をお送りいたしますので、退寮希望月の前月末2週間前までに学生センターの学生支援係窓口に退寮願を提出してください。
※退寮願には、入寮時に選任した保証人にも自署いただく欄がございますのでスケジュールには余裕をもってご連絡ください
【連絡・提出期日の例】
8月退寮(8月1日〜31日退寮)を希望する場合
フォーム連絡期限:7月1日まで(退寮希望月の1か月前)
退寮願提出期限 :7月17日まで(退寮希望月の前月末2週間前)※保証人の署名必要


